Обяви 0 За нас Контакти
Продава ПАРЦЕЛ
област Добрич, гр. Балчик
45 000 €
88 012.35 лв.

(214 €, 418.55 лв./m2)
Цената е с включено ДДС
История на цената
Коригирана в 21:21 на 27 април, 2026 год.
Обявата е посетена 484 пъти.
Площ:
210 m2
Регулация:
ДА
Ток:
ДА
Вода:
ДА

Описание на имота:


ПАРЦЕЛ ЗА ЕДНОФАМИЛНА КЪЩА В ЦЕНТЪРА НА БАЛЧИК

реф. но: 4275

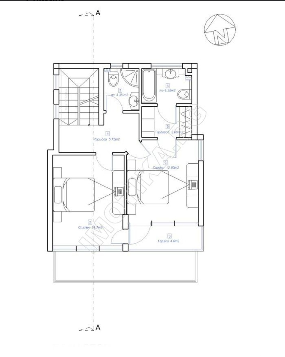
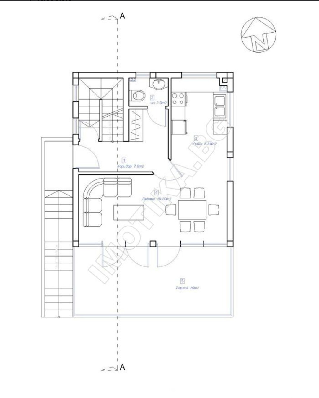
Парцел с готов проект за еднофамилна къща със застроена площ 72м2 и РЗП 196м2.

Първо ниво: гараж за две коли, мазе;

Второ ниво: Дневна, Кухня, Баня, Тераса;

Трето ниво: Две спални, Две бани, Килер, тераса;

Четвърто ниво: Покривна тераса с Барбекю зона и Морска Панорама;

Възможност за построяване на сградата.
Особености
За жил.строителство
За контакт:
0898994780

Този имот се предлага само на частни лица
Агенция:
ИМОТИКА
0898994780
ИМОТИКА logo
Медал за прослужено време
В imot.bg от 2018 г.
imotika.imot.bg
Адрес:
област Варна, гр. Варна, бул. Христо Смирненски 237
http://imotika.bg
ИЗПРАТИ ЗАПИТВАНЕ
ИЗПРАТИ ЗАПИТВАНЕТО

Продава ПАРЦЕЛ
област Добрич, гр. Балчик
Обява: 1r176746538970157

45 000 €
88 012.35 лв.
История на цената
(214 €, 418.55 лв./m2)

Цената е с включено ДДС
ЗАПАЗИ ОБЯВАТА

Местоположение: област Добрич, гр. Балчик